Timeless 1930s Craftsmanship In Downtown

3
2
2,271ft²
$460,503

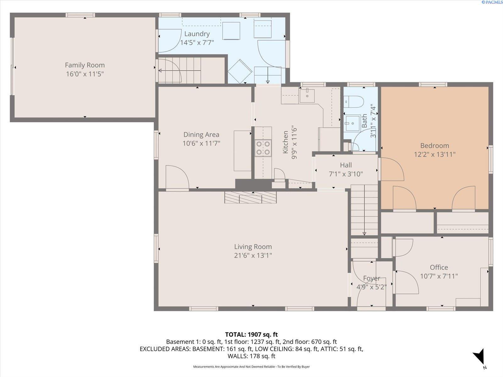
MLS# 290122 A rare opportunity to own a truly special home with rich historic roots in Downtown Kennewick, Originally commissioned in the 1930s by Judge Charles Powell - later appointed by President Eisenhower - this home blends timeless character with thoughtful updates. The original hardwood floors have been professionally refinished, setting the tone from the moment you step inside. Original glass doors, cabinet knobs, and built-in bookcases remain beautifully intact, including those in Judge Powell's former home office/den near the entry. The living room features a wood-burning fireplace that creates a warm and inviting atmosphere, complemented by a separate family room on the main level - ideal for everyday living or entertaining. Upstairs offers a sitting or computer nook, bedrooms with additional storage potential, and flexible space. Situated on an oversized lot, the Historic Mixed Use (HMU) zoning allows for expansion possibilities such as an ADU or shop, or simply enjoy the large, private backyard. Walk to local restaurants, shopping, and everything downtown Kennewick has to offer.


Address: 503 West 1st Avenue, Kennewick, WA 99336

Subdivision: Amons Addition

Style: Site Built-Owned Lot 2 Story

Garage:

  • None

Year Built: 1935

Features:

  • Basement
  • Fencing/Partial
  • Patio/Open
  • Irrigation

Water & Sewer:

  • Water - Public

MLS Number: 290122

Status: For Sale

Listing Agent: Keith Silliman & Misty Hendrickson

Brokerage: Retter and Company Sotheby's

Schedule Showing With Windermere

Open Houses

Saturday January 31, 2026

2:00 pm - 4:00 pm

Sunday February 1, 2026

2:00 pm - 4:00 pm